Please
login
or
register
.
1 Hour
1 Day
1 Week
1 Month
Forever
Login with username, password and session length
News:
Home
Forum
Help
Gallery
Links
Login
Register
halftrackinfo
»
roller and winch bumper and winch related items
»
winch, pto shaft and pto
»
Winch Rail Drawings
« previous
next »
Print
Pages: [
1
]
Author
Topic: Winch Rail Drawings (Read 11095 times)
steve1973
Hero Member
Posts: 1419
Winch Rail Drawings
«
on:
March 20, 2018, 09:22:25 PM »
Hi Guys,
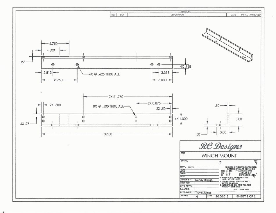
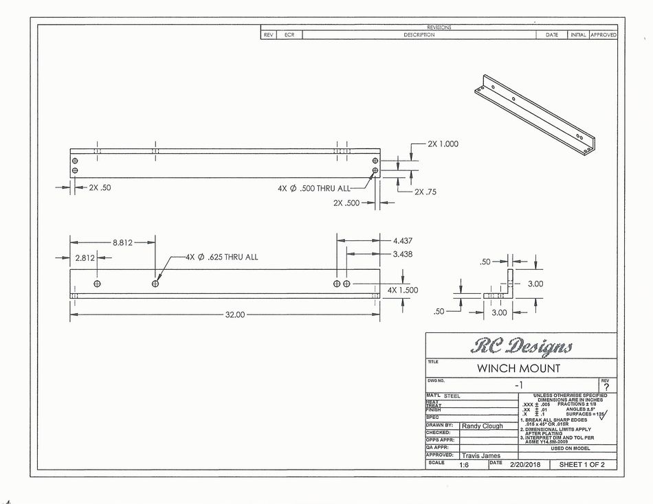
I had to do some work on my winch recently so I ended up taking it apart. I ended up making a set of winch rails for someone and at the same time paid to have the rails drawn out.
I'm posting these for free but if you want to chip in a few dollars that would be appreciated. I might do more of this, getting drawings made, if there is an interest.
Thanks,
Steve A.
Logged
Tapper02
Hero Member
Posts: 627
Re: Winch Rail Drawings
«
Reply #1 on:
March 21, 2018, 12:21:25 AM »
I don’t have a winch model Steve but that’s fantastic. It’s probably a good idea for any original part of any vehicle that is pulled off to reproduce. Would help a lot of restorers and ensure some consistency in reproduction parts that are no longer available NOS.
Bravissimo!
-Tom
Logged
1942 Diamond T M3 Halftrack
(Being restored to an M3A1 configuration)
Frame Number M31789
Ordnance Number 3692
Hood Number USA W403570-S
1944 Schelm Bros. M10 Ammunition Trailer
Serial Number 16959
MVPA # 30507
steve1973
Hero Member
Posts: 1419
Re: Winch Rail Drawings
«
Reply #2 on:
March 21, 2018, 02:30:24 AM »
Thanks Tom!!
Steve A.
Logged
colkking
Full Member
Posts: 189
Re: Winch Rail Drawings
«
Reply #3 on:
March 21, 2018, 05:02:22 PM »
As the extremely grateful recipient of the second set of rails, I will say that they look MAHVELOUS!!
They fit perfectly.
Thanks again, Steve!!
Logged
brit plumber
Sr. Member
Posts: 345
Re: Winch Rail Drawings
«
Reply #4 on:
December 29, 2021, 03:17:44 PM »
I’ve been making some replacement rails for my winch (some of the many missing parts) and noticed what I think are some errors in the dimensions.
On the front rail, the distance between 5/8 holes for the drive housing should be 6”, the same as the rear rail. They should also be 1.5” from the top (or bottom) edge, the same as the rear rail.
Lastly, the non drive end bracket 5/8 holes, I assume to be out but I’m not sure which drawing would be incorrect. I don’t have that bracket so can’t confirm, but all the photos I’ve seen suggest the hole distances are the same for the front and rear rail.
Logged
1942 VEP GPW
steve1973
Hero Member
Posts: 1419
Re: Winch Rail Drawings
«
Reply #5 on:
December 29, 2021, 07:34:36 PM »
I had the rail drawings made from original rails. All the rails that I have had made to rebuild winches seem to work and line up fine. I use these rails on Tulsa 18G and 18H winches.
Steve A.
Logged
brit plumber
Sr. Member
Posts: 345
Re: Winch Rail Drawings
«
Reply #6 on:
December 30, 2021, 03:32:29 AM »
Could the guy who did the drawings have made a few mistakes? The front rail drawing definitely has issues, with the drive housing holes drilled as indicated, the housing won’t even raise high enough to fit and the distance between holes isn’t enough. The rear rail is spot on for the drive housing and I assume the dimensions would be the same for both front and rear. I’ll see if I can get some photos with my drive housing fitted.
Please don’t think I’m knocking the drawings as I’d be no where without them.
Logged
1942 VEP GPW
brit plumber
Sr. Member
Posts: 345
Re: Winch Rail Drawings
«
Reply #7 on:
December 30, 2021, 05:47:30 AM »
I’ve got some photos, hopefully this will explain better.
First is my front rail with holes at .938” from top as per drawing, second is an original rail. The bolt heads are much closer to the bottom edge and I’d estimate at 1.5” (or centre to rail depth).
Next photo is 2 x 5/8” bolts 1” apart as per the drawing of the rear rail for the non drive end bracket. The heads are so close you can’t get a socket on them. Next is a photo of an original rail where the bolts are further apart and I’d guess the distance of 1.687” shown on the front rail drawing is correct.
Logged
1942 VEP GPW
82BA29
Newbie
Posts: 6
Re: Winch Rail Drawings
«
Reply #8 on:
January 06, 2022, 09:48:46 AM »
Thanks very much for Sharing Steve! It's a long road for some of us, and a great help indeed where others have "cleared the way". Brit, Thanks too- It's great to read the interaction and see the group knowledge expand through discussion of the details. We all want to get it As close to perfect as we can!
Is there any chance the discrepancy is based on Manufacturer, date, or some other cause for variation in original production?
Logged
FV603 Saracen Mk2
FV432 Trojan Mk1
M2A1 formerly M2
M998
Print
Pages: [
1
]
« previous
next »
halftrackinfo
»
roller and winch bumper and winch related items
»
winch, pto shaft and pto
»
Winch Rail Drawings